Owning a storage unit at Kenai River Man Caves is more than just extra space—it’s a smart investment. With growing demand for secure, versatile storage, these units offer long-term value while giving you a place to store boats, RVs, gear, or even create your own personal workshop or man cave.
Unlike renting, buying means you’re building equity in a property that can appreciate over time, giving you both practical use and financial upside. Priced between $319,000 and $478,500



How Can We Help You?




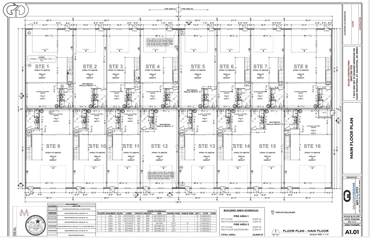
Experience over 23,800 square feet of thoughtfully designed storage space, featuring 16 individual suites that each offer flexibility to suit a range of needs. Mezzanine levels provide valuable vertical storage, allowing you to maximize efficiency and keep your belongings organized. The layout ensures smooth navigation throughout the facility, making access to your stored items straightforward and convenient.
Your belongings are protected by an advanced suite of fire safety features, including strategically placed fire extinguishers throughout the premises and designated fire areas that enhance overall building safety. The unit layout is designed with clear evacuation routes and meets strict safety codes to ensure full regulatory compliance, giving you peace of mind that your items are stored in a secure, professionally managed environment.


Each unit is professionally designed with precision, featuring detailed door schedules, high-quality wall specifications, and an efficient layout that streamlines workflow and maximizes usable space. Durable construction materials ensure long-term reliability, while thoughtfully planned access points and circulation routes make it easy to organize, load, and retrieve items. Additional features, such as well-marked entryways and robust structural elements, further enhance the overall functionality and user experience.
23,808 sq. ft. across 16 suites with mezzanine levels for expanded storage
Fire extinguishers, fire zones, and code-compliant safety
Efficient layouts for easy access and organized storage
Durable construction with quality materials and precise design
Modern facility with clear suite numbers and signage
Storage units have consistently shown strong appreciation and resilience, outperforming both single-family homes and stocks over the past three decades. Their steady upward trend, contrasted with the volatility of housing and the relative stagnation of stocks, highlights storage units as a reliable and high-performing investment. This combination of dependable growth and stability makes them a smart choice for investors seeking both income and long-term capital gains.

Unfortunately, we're not offering financing options at the moment. Buyers will need to provide their own financing.
There are 16 total units, available end of 2025.
There are 16 units available in total, with the following sizes and prices:
Unit Size Unit Price
20 x 50 with a 16 x 20 mezzanine 1320 ft.² $319,000
24 x 50 with a 16 x 24 mezzanine 1584 ft.² $382,800
30 x 50 with a 16 x 30 mezzanine 1980 ft.² $478,500
241.6 square foot
Units are available without a mezzanine as well.
Yes! Our units have full bathroom facilities installed with washers and dryers on the bottom floor.
Email: [email protected]
Address
P.O. Box 1566
Kenai, Alaska 99611-1566
34227 Industrial Street
Soldotna, Alaska 99611
Phone Number:
(855)907-1140
Office: 34227 Industrial Street
Soldotna, Alaska 99611
Call (855)907-1140
Email: [email protected]
Site: www.kenairivermancaves.com
